如何开酒店

tel
酒店暗房多怎么办?酒店工程“三板斧”砍掉酒店暗房

       对顾客来说,酒店暗房不受待见;对酒店投资商来说,酒店暗房影响入住率和RevPAR。怎样规避暗房出现呢?!尚客优给您支招!

       一般在何种情况下,会出现“暗房”呢?

       当物业可做四排及四排以上客房时,通常会出现暗房。若处理得当,可降低暗房数量,甚至做到无暗房。

       这里主要介绍三种处理暗房的方式:

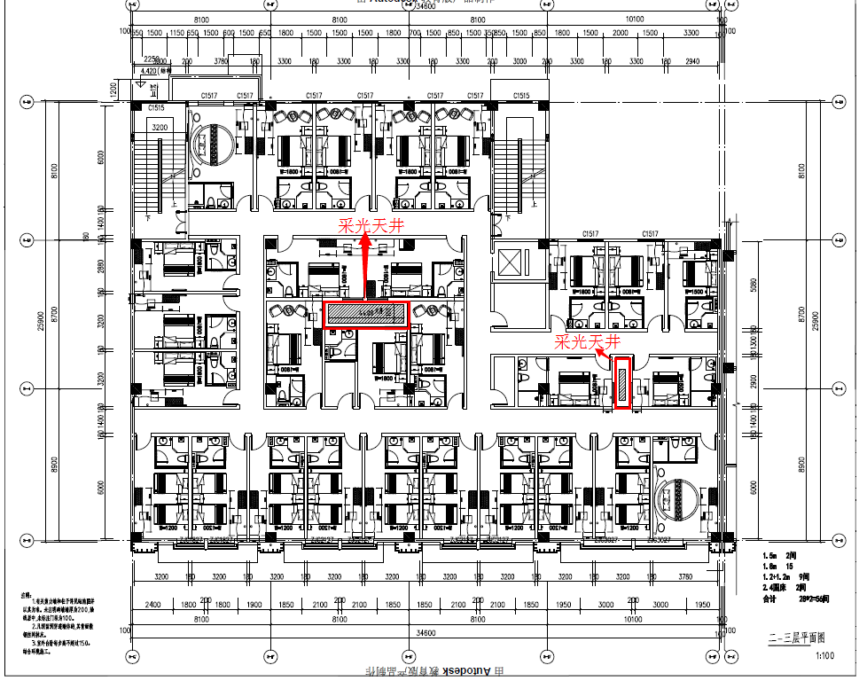
招:采光天井——适用于客房在物业顶楼或采光天井可直通顶楼的酒店。

       如下图所示,此物业为四排房,楼层中部有五间客房为暗房,可将中间位置(红框内)单独隔出,与顶楼打通,相邻五间客房增设窗户,使顶楼的阳光可以照射进来,空气流通。

       另外,位于楼层右侧的相邻两间暗房也采用了在中部开设采光天井的方法,解决了暗房的问题。

这样,开设了两个采光天井,整层楼没有一个暗房,房间的面积和出房率也提升。

酒店暗房分布图

第二招:采光走廊——适用于客房楼层不位于顶楼或无法打通至顶楼的酒店。

       如图,一个竖排四排房,为避免暗房的发生,采用的就是采光走廊。

       即在两排房的中间开一条“假走廊”(图中红框部分),在走廊两头开窗或在假走廊顶部放置人工光源,在走廊中陈设装饰,打造人工景观。靠近走廊的两排客房在走廊两旁开窗采光,这样不仅避免了暗房的出现,还打造出一道“窗外景致”!

采光走廊

第三招:廊窗——适用于受客房面积限制等原因不能开设采光天井和采光走廊的酒店。

       如图, 红色框内因物业实际宽度限制,不能开采光走廊,为了避免暗房的发生,在客房靠近走廊的墙上开一扇“廊窗”,既可流通空气又可采光。

       这是简单的处理方式,成本较低、效果一般,但在特殊情况下确实也能够解决酒店暗房的问题。

廊窗

行业热搜词

投资有风险,选择需谨慎

close
分享到
微信好友QQ新浪微博